PLANOS VIVIENDAS




Descubre la vivienda post Covid ideal: sostenible, saludable y accesible. Con un cuidado diseño y estilo contemporáneos, las 28 viviendas de obra nueva que componen el edificio Residencial La Granja León están concebidas como un espacio en el que poder conciliar hogar y teletrabajo. Por ello hemos cuidado especialmente la existencia de espacios polivalentes, con abundante luz natural y ventilación adecuada, que permitirán disfrutar del máximo confort sin incremento de gasto.

Nuestro edificio se ha diseñado bajo criterios de sostenibilidad y máxima eficiencia energética (calificación A). Es una construcción con un coste energético muy bajo para el propietario y el planeta ya que emplea fuentes de energías renovables.

Para que el ambiente interior sea limpio y sano se utilizarán sistemas de renovación constante y calculada del aire. Además, al incorporar un recuperador de calor, evitamos que durante esta renovación de aire tan necesaria para cuidar nuestra salud en la era post Covid, no perdamos la temperatura interior. Se trata de viviendas pasivas o de consumo casi nulo.

Las viviendas de Residencial La Granja León serán hogares inteligentes. Gracias a las nuevas tecnologías como el internet de las cosas y el control por voz, el usuario podrá, por ejemplo, gestionar la iluminación más indicada de una habitación en función de la luz solar o de la presencia de personas, planificar la temperatura de la vivienda según la hora del día o de la temperatura en el exterior, accionar persianas y toldos de acuerdo a las condiciones climatológicas o a un horario preestablecido, programar los electrodomésticos para que funcionen en horario de tarifa nocturna, cortar automáticamente el suministro de agua o gas cuando se detecte un escape o avería, etc.

Disponemos de viviendas de 1, 2 y 3 dormitorios.

Pulsa sobre la vivienda Elegida para ampliar

Planta Primera

Planta Primera, Distribución Vivienda primero A Vivienda primero B Vivienda primero C Vivienda primero D Vivienda primero E

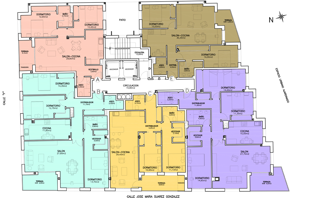
Planta Segunda a Cuarta

Planta Segunda a Cuarta, Distribución Vivienda A seguna a cuarta Vivienda B seguna a cuarta Vivienda C seguna a cuarta Vivienda D seguna a cuarta Vivienda E seguna a cuarta

Planta Quinta

Planta Quinta, Distribución Vivienda D quinta

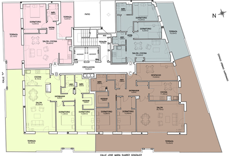
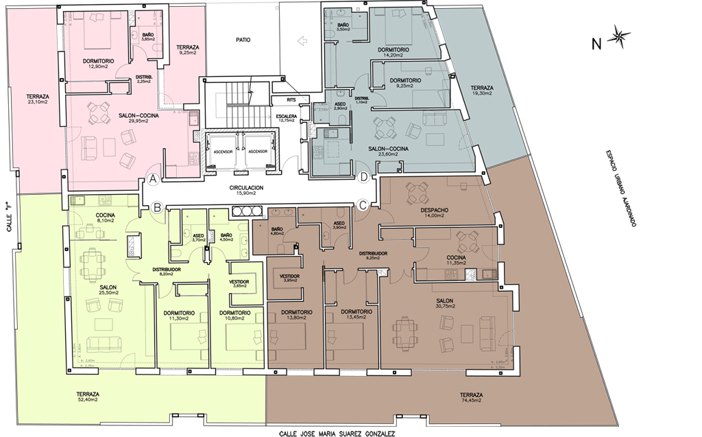
Planta Sexta-Ático

Planta Bajo Cubierta, Distribución Vivienda A planta bajo cubierta



¿BUSCAS UN LUGAR IDÓNEO QUE GARANTICE EL ÉXITO DE TU NEGOCIO? ¡LLÁMANOS E INFÓRMATE SOBRE LOS LOCALES DISPONIBLES!.

Planta Baja Locales

Planta Locales, Distribución Local 1 Local 2 Local 3

Pulsa sobre la vivienda Elegida para ver su ficha

Planta Primera

Planta Primera, Distribución Vivienda primero A Vivienda primero B Vivienda primero C Vivienda primero D Vivienda primero E

Planta Segunda a Cuarta

Planta Segunda a Cuarta, Distribución Vivienda A plantas segunda a cuarta Vivienda B plantas segunda a cuarta Vivienda C plantas segunda a cuarta Vivienda D plantas segunda a cuarta Vivienda E plantas segunda a cuarta

Planta Quinta

Planta Quinta, Distribución Vivienda D planta Quinta

Planta Sexta-Ático

Planta Bajo Cubierta, Distribución Vivienda A planta bajo cubierta

Pulsa sobre la vivienda Elegida para ver su ficha

Planta Baja Locales

Planta Locales, Distribución Local 1 Local 2 Local 3